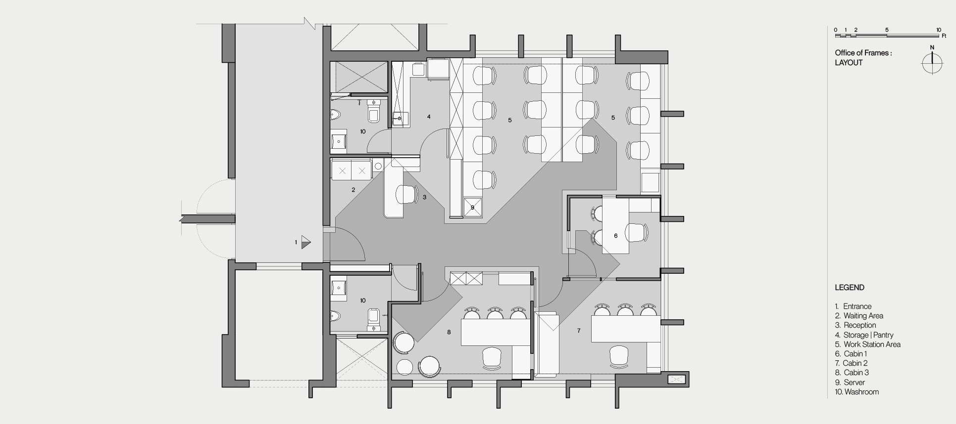
The Office was designed for a father and his son who run different set-ups but share the same office space. The father runs a real-estate consultancy while the son is a chartered accountant. Both have cabins of their own which they use to work, rest and conduct meetings in. A third small cabin was provided to a managing partner at the office while the rest of the space was divided into the work space, reception and waiting area.


The Office was designed for a father and his son who run different set-ups but share the same office space. The father runs a real-estate consultancy while the son is a chartered accountant. Both have cabins of their own which they use to work, rest and conduct meetings in. A third small cabin was provided to a managing partner at the office while the rest of the space was divided into the work space, reception and waiting area.
The office is organised such that the waiting and reception out in front is the first layer through which anyone passes before they engage with the rest of the spaces. The cabins open into the open work space which allows for quick interactions and easy work-flow. The budget of the project was fairly tight, which meant that smart details and choice of materials played a vital role in the design process.
The furniture details and flooring pattern weave between the cabins and work space in a way that one always feels connected with the corresponding spaces. The visually floating partitions enhance this effect with their transparency along the floor.
