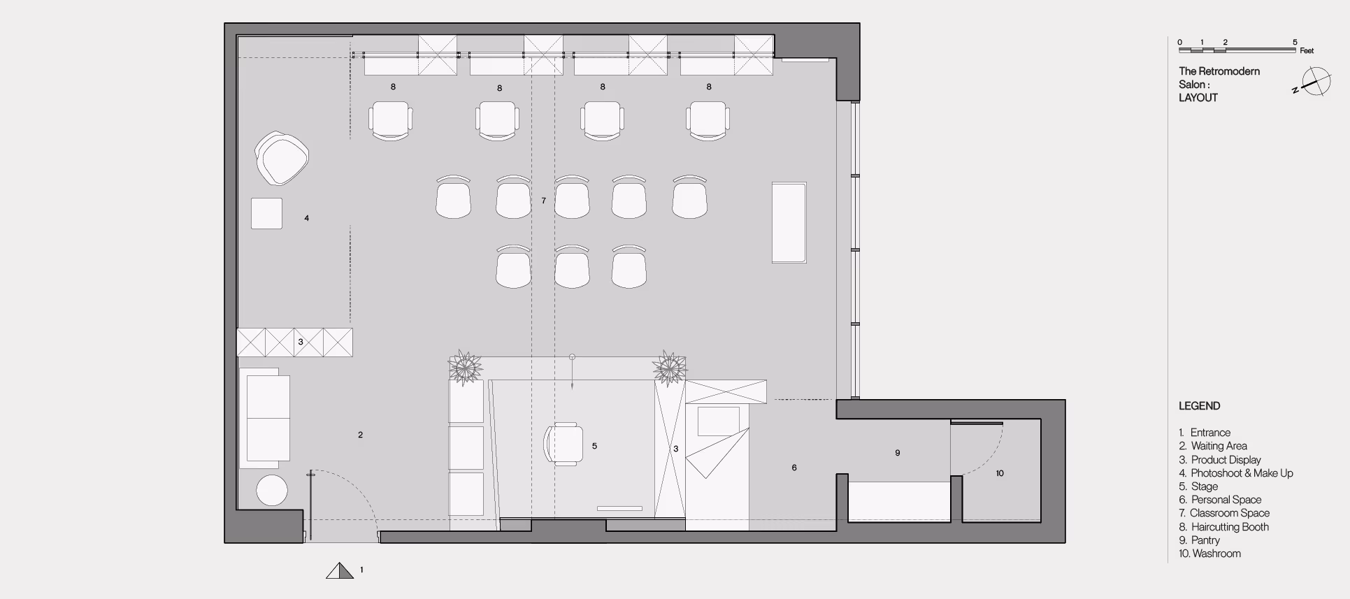
The Salon was designed for a young independent lady entrepreneur whose speciality was female wedding prep which drew clientele mostly during wedding season. Due to this niche model of work there was a need to design a space which could convert into a classroom type set-up during the off-season. The brief also included the need for a space for photoshoots post the wedding prep.


The premise came with a unique high volume which offered an advantage of making the space larger due to the additional height but also came with the challenge of having to provide lighting and cooling solutions for the same. The whole layout was set-up for the salon to function as one complete unhindered space with only curtains to define the functions that required a little privacy.
The make-up stations were set-up along the length of the space with a large open space in the center to accommodate additional chairs for the classroom set-up. A stage was set-up on the wall opposite to these stations, which served as the owner’s own work space as well as the teaching platform for the classes. The retro modern elements used in the photo booth and entrance stood in stark contrast to the modern minimalist set-up of the work / class area. The neutral beige and grey colour played an important role in creating a backdrop at the lower level of the space while the stark blue on the ceiling helped bring the overall space to life with the lights.
Design Team: Caleb, Perception Lab (Collaborator)
Photo Credits: Shutterspace

A conscious effort was made to use the height of the space to create a unique experience for the customers. The organisation of the salon-centric activities along the walls ensured that the central space could be used in multiple ways, making other informal activities related to the salon possible.